Pastatų kompleksas T. Daugirdo g. 4, Kaune

Adresas: Kauno m. sav., Kauno m., T. Daugirdo g. 4

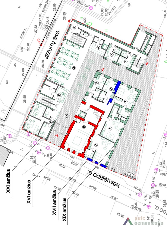
Pirmieji architektūriniai šios vietos tyrimai buvo atlikti 1984‑1986 m., ir paneigė skeptišką nuomonę apie taip vadinamą „senosios gubernatūros“ istorinę ir architektūrinę vertę[1]. Būtent šių tyrimų metu buvo nustatyta, kad iš pažiūros vieningas XIX a. pastato gatvės fasadas slepia turtingą, XVI a. siekiančią, istoriją. Daugirdo gatvės fasade buvo surasti visų po tinku pasislėpusių XVI‑XVII a. elementų fragmentai, išsiaiškintas principiniai pastato raidos etapai. Tiesa, ataskaitoje konstatuota, kad ilgieji fasadai neprieinami pakėlimo mechanizmams, taigi jų zondažai neduoda pilnų išvadų[2].

Šių tyrimų metu buvo nustatyta, kad pastatas susiformavo sujungus du, skirtingiems savininkams priklausiusius, namus. Tai buvo šalia vienas kito stovinčių ir išilginę bendrą sieną turinčių namų pora. Remiantis to meto Kauno senamiesčio statyboms būdingais principais daroma prielaida, kad dviaukščių pastatų vakariniai fasadai buvo puošti frontonais, kurie, deja, mūsų dienų nepasiekė.

1991 m. vykdyti vidaus architektūriniai tyrimai patvirtino ir papildė jau turimą medžiagą. Išaiškėjo buvęs šiaurinio XVI a. namelio tūris, nustatyta jo vidinė struktūra, pastato viduje rastas rytinio frontono fragmentas. Pietinėje dabartinio tūrio dalyje rasti pavieniai buvusio XVII a. pastato elementai: vakarinio fasado siena, buvusios rūsio laiptinės fragmentas, nišos posesijinės sienos pietinėje pusėje.

XIX a. pabaigos Kauno senamiesčio nuotraukose šioje vietoje aiškiai matomas dviaukštis pastato tūris. Jo fasadų struktūra suformuota jau po abiejų namų apjungimo. Neatsižvelgiant į ankstesnes, buvo suformuotos naujos langų ir durų angos, uždengtas naujas, gana lėkštas stogas, abiejų pastatų išorinės sienos nutinkuotos.

XX a. pradžioje užstatytas trečiasis aukštas, suformuoti frontonai, sumontuotas stogas. Visas pastatas naujai nutinkuotas, per visą aukštį iš tinko suformuojant rustus.

Asta Prikockienė

 


[1] Kugevičius, V. XVI-XXa viet. reikšmės arch. paminklas gyv. namas Daugirdo g. Nr. 4. Architektūriniai išorės tyrimai. Rankraštis. 1986,  p. 15.

[2] Ibid., p. 18.